280 000 €
Située au cœur du village de Meix-le-Tige, cette maison en pierre vous invite à redonner vie à un lieu empreint d’histoire. Développant environ 175 m² habitables sur deux niveaux, elle séduira les amateurs de volumes, d’authenticité et de projets à façonner.
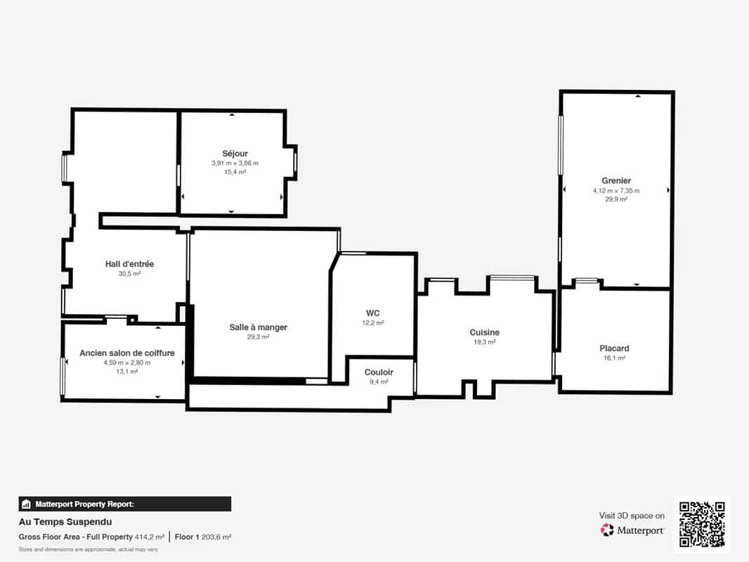
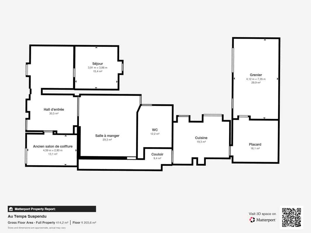
Le rez-de-chaussée s’articule autour de plusieurs espaces de vie : deux cuisines, un salon, une salle à manger, une arrière-cuisine, un hall d’entrée et un wc indépendant. Un ancien salon de coiffure encore présent offre une belle opportunité pour une activité libérale ou un espace professionnel.
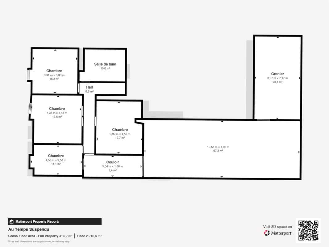
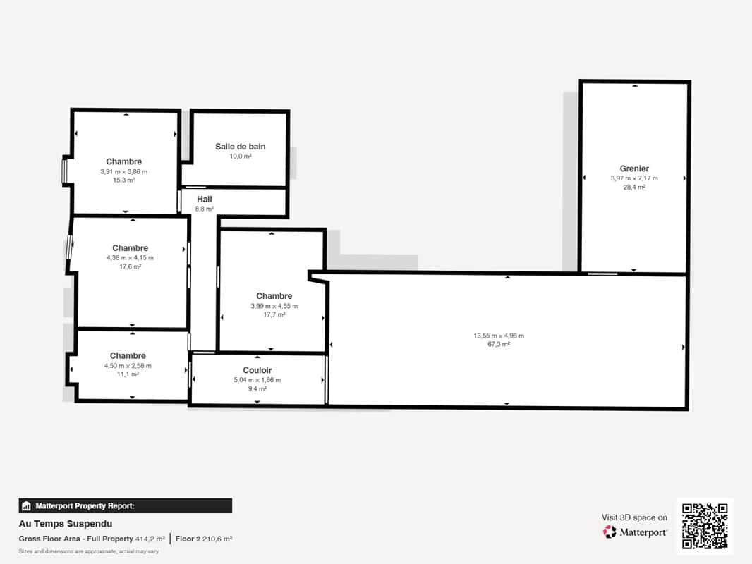
À l’étage, vous trouverez 4 chambres, une salle de bains ainsi qu’un vaste grenier. Le sous-sol comprend une cave. Le bien d'une terrasse à l’arrière.
Sur le plan technique, elle est équipée de panneaux photovoltaïques récents, d’un chauffage central au mazout et d’une toiture en bon état. Il est possible d’y aménager deux logements, sous réserve de l’obtention d’un permis d’urbanisme.
Une maison pleine de potentiel, à réinventer selon vos envies. Idéale pour une famille, un indépendant ou un investisseur à la recherche d’un bien de caractère dans un environnement calme et accessible. Vous êtes intéressé ? Contactez nous ! Les informations fournies par l'agence ont un caractère indicatif et non contractuel. En conséquence, elles ne peuvent engager la responsabilité de l'agence et ne dispensent pas la personne intéressée de réaliser les vérifications.
Une demande concernant ce bien ?
Caractéristiques du bien
-
Nombre de salle de bains
1
-
Nombre de chambres
4
-
Superficie
179 m²
- Cuisine
Armoires et appareils
- Revenu cadastral
470 €
- Parking
Non
- Cave
1
- TConsommation
EPC spec 342kWh/m²/an
Émission CO2 85Kg CO2/m²/an
Le choix d'une maison, l'amour d'une région
Contactez l’un de nos collaborateurs






