245 000 €
Située au cœur de Virton, cette maison offre une belle opportunité d’emménager dans un cadre de vie pratique et confortable, à proximité immédiate de toutes les commodités.
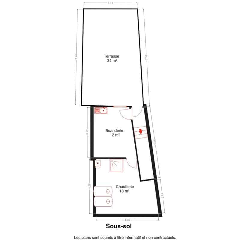
D’une superficie habitable d’environ 100m², ce bien se compose, au rez-de-chaussée, d’un hall d’entrée, d’un espace salon et d’une cuisine avec coin repas. À l’étage, vous trouverez deux chambres et une salle de douche. Un grenier aménagé, offrant la possibilité d’y créer une troisième chambre, vient compléter l’ensemble. Au sous-sol, vous disposez d'une buanderie avec un accès extérieur ainsi qu'une cave avec une douche. À l’extérieur, vous profiterez d’une terrasse et d'un jardin orientés sud-est, idéal pour les moments de détente. Les châssis sont en double vitrage PVC, le chauffage est central mazout et l’électricité est conforme jusqu'en 2051.
Envie de vous lancer ? Contactez-nous !
Les informations fournies par l’agence ont un caractère indicatif et non contractuel. Elles ne peuvent engager sa responsabilité et ne dispensent pas les intéressés de procéder à leurs propres vérifications.
Documents
- 304_etage-1.jpg
- 308_etage0.jpg
- 314_etage1.jpg
- 315_etage2.jpg
- PEB.pdf
- Matrice SN.pdf
- Carte archéologique.pdf
- DRIGM.pdf
- Guide Communal d'Urbanisme.pdf
- Guide Régional d'Urbanisme.pdf
- Parcelle cadastrale.pdf
- PASH.pdf
- Plan de secteur.pdf
- Schéma développement communal.pdf
- Schéma d'orientation local.pdf
- Zone Natura 2000.pdf
Une demande concernant ce bien ?
Caractéristiques du bien
-
Nombre de salle de bains
1
-
Nombre de chambres
2
-
Superficie
100 m²
- Cuisine
Armoires et appareils
- Revenu cadastral
327 €
- Parking
Non
- Cave
1
- TConsommation
EPC spec 283kWh/m²/an
Émission CO2 70Kg CO2/m²/an
Le choix d'une maison, l'amour d'une région
Contactez l’un de nos collaborateurs







