295 000 €
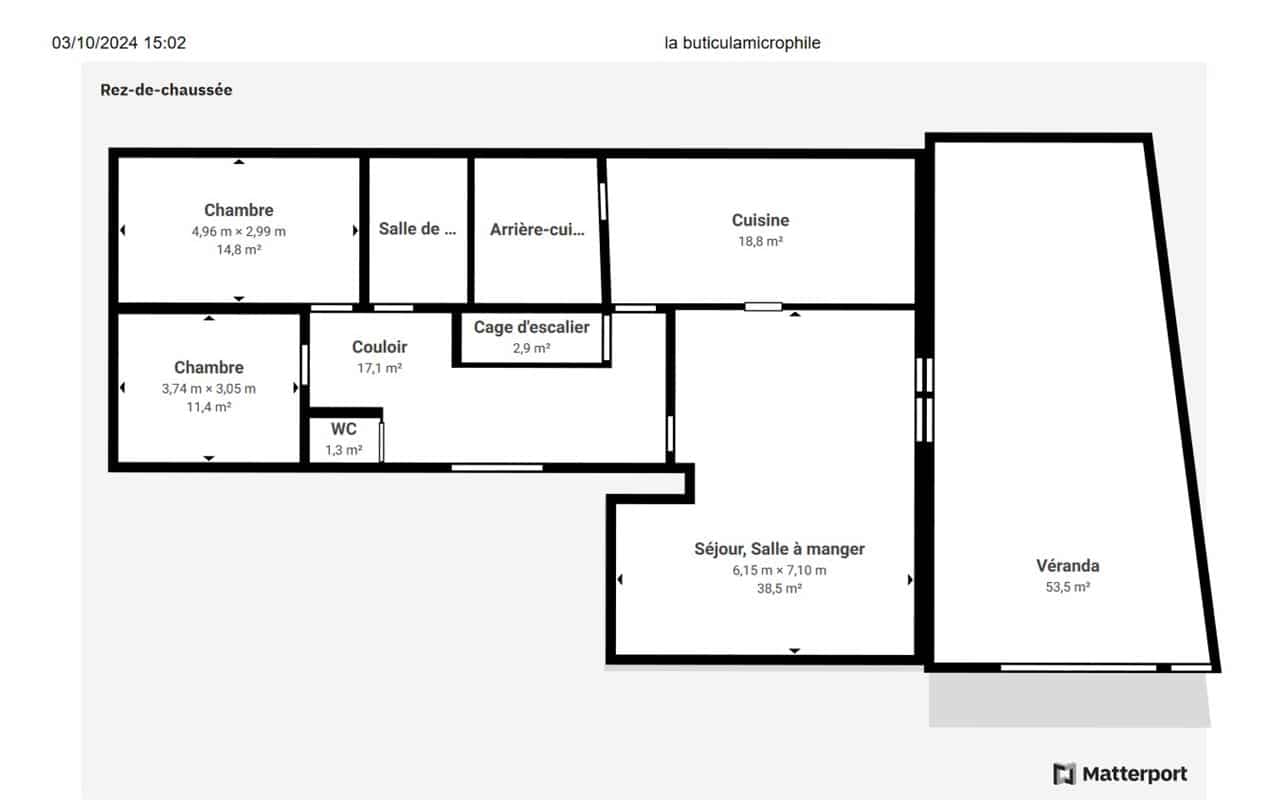
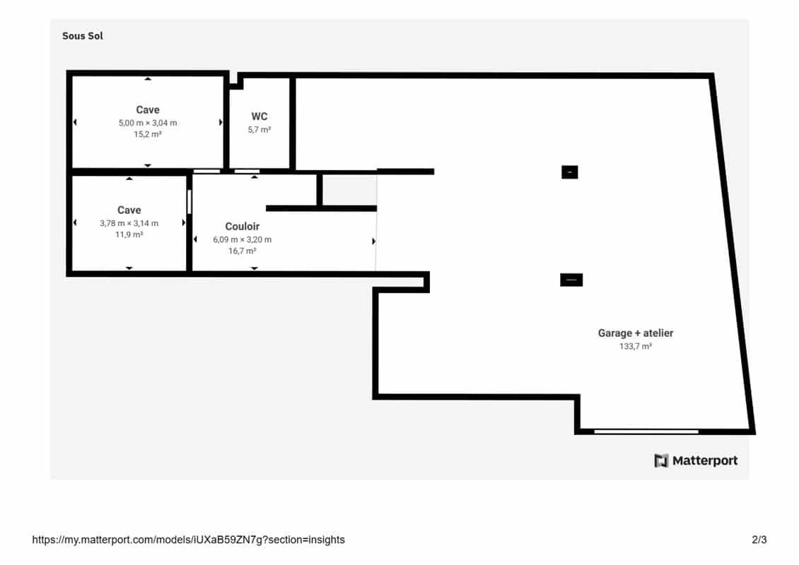
Découvrez cette maison 3 façades pleine de potentiel située à Virton, dans un quartier calme et proche de toutes commodités. Construite en 1983, elle vous séduira par son espace généreux et sa distribution bien pensée. Au rez-de-chaussée, profitez d'un vaste séjour lumineux qui invite à la convivialité, d'une grande véranda, d'une cuisine fonctionnelle et de deux chambres. Les combles aménagés offrent trois chambres supplémentaires et une salle de bains. Côté technique, ce bien dispose de panneaux photovoltaïques, d'une chaudière au mazout récente et de fenêtres en double vitrage bois, garantissant un confort énergétique appréciable. Un grand garage pour 5 véhicules, plusieurs caves et un jardin complètent ce bien aux nombreux atouts. Appelez-nous ! Les informations fournies par l'agence ont un caractère indicatif et non contractuel. En conséquence, elles ne peuvent engager la responsabilité de l'agence et ne dispensent pas la personne intéressée de réaliser les vérifications.
Une demande concernant ce bien ?
Caractéristiques du bien
-
Nombre de salle de bains
2
-
Nombre de chambres
5
-
Superficie
250 m²
- Cuisine
Armoires et appareils
- Revenu cadastral
1254 €
- Parking
Oui
- Cave
1
- TConsommation
EPC spec 330kWh/m²/an
Émission CO2 34Kg CO2/m²/an
Le choix d'une maison, l'amour d'une région
Contactez l’un de nos collaborateurs



